Espace industriel à louer – 3260 avenue Watt, local 102 - For Rent

Listing number 9193
ID N/A
Price -
Rooms 0
Type Industrial Space
Category N/A
Lot size 0.00ft2
Year Built -
Footage 4,625.00ft2
Floors / Stories 0
Parking Disponibles
Is it a sublease? No

Description

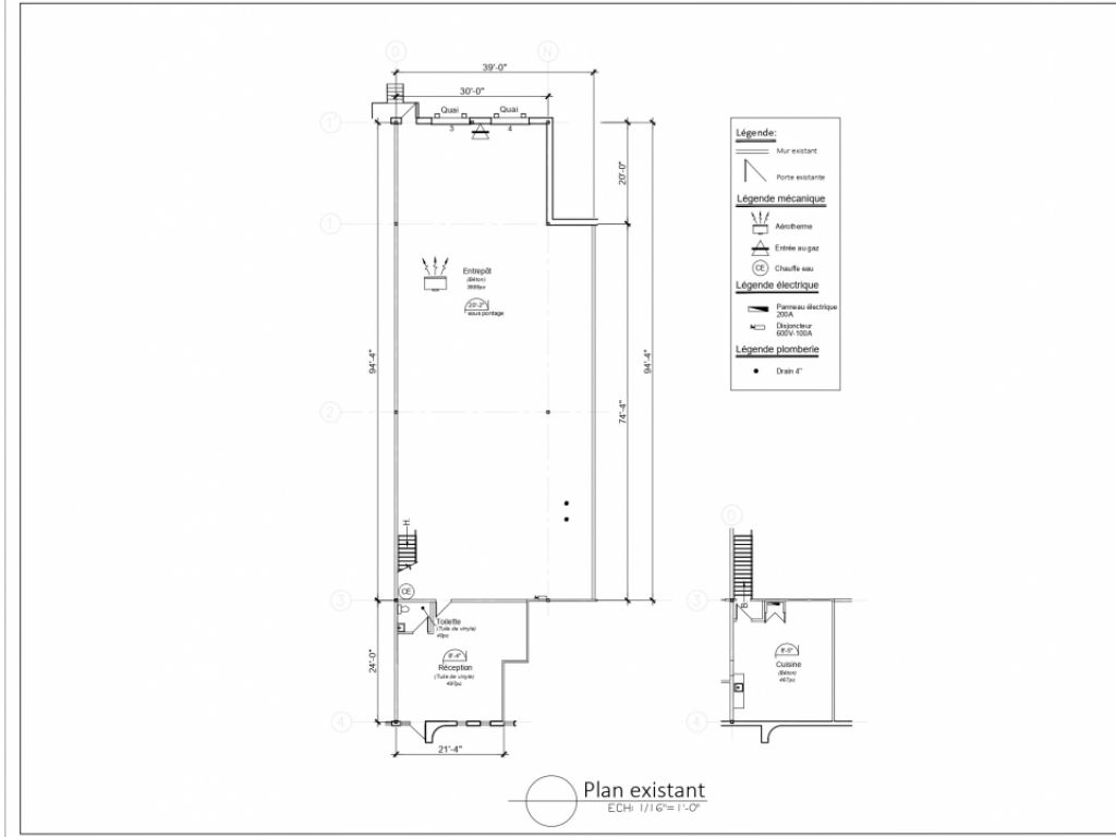
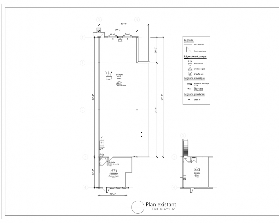
± 4 625 pi² avec 2 quais de chargement – Parc Industriel de Duberger

Offert dans un immeuble bien positionné au cœur du parc industriel de Duberger, ce local d’une superficie d’environ 4 625 pi² propose une combinaison optimale d’espace d’entreposage, de bureaux et de fonctionnalités logistiques.



Caractéristiques du local :

2 quais de chargement à l’arrière pour faciliter la réception et l’expédition des marchandises
Espace de réception à l’avant, parfait pour accueillir la clientèle ou les partenaires
Petite mezzanine pratique pour rangement ou espace administratif complémentaire
Aire principale en aire ouverte, idéale pour l’entreposage ou l’aménagement sur mesure selon vos opérations


Usages potentiels :

Entrepôt ou centre de distribution
Atelier de fabrication ou de production


Ce local offre une combinaison idéale entre fonctionnalité, accessibilité et flexibilité d’aménagement. Il est prêt à accueillir une entreprise à la recherche d’un espace efficace et bien positionné pour soutenir sa croissance.

Il a comme avantage les points suivants
Zone de stationnement pour le locataire
Prise de possession rapide possible
Secteur industriel Ouest de la ville de Québec

Secteur intéressant pour :
Proximité de l’autoroute 40
Proximité de L’autoroute Duplessis
Au cœur de Henri-IV

Grille de zonage :
https://carte.ville.quebec.qc.ca/GrillesZonage/HandlerZonage.ashx?36451Ip

Ce n’est pas le local idéal ?
Contactez nous, plusieurs locaux ne sont pas affichés


Chez Location BCI, nous sommes spécialisés dans la location de locaux commerciaux adaptés aux besoins de votre entreprise. Que vous soyez à la recherche d’un local à louer, d’un bureau à louer, ou d’un local industriel à louer, notre équipe professionnelle est là pour vous accompagner et cela rapidement.

Si le local que vous consultez ne correspond pas parfaitement à vos attentes, pas de souci! Nous mettons tout en œuvre pour trouver le meilleur espace pour votre entreprise grâce à notre expertise, notre réseau et notre rapidité d’action.

Notre mission est simple : vous offrir un service personnalisé, efficace et axé sur vos besoins spécifiques, afin de garantir une expérience de location fluide et sans tracas. Avec Location BCI, vous avez la certitude de collaborer avec une agence professionnelle qui comprend l’importance d’un local parfaitement adapté à votre réussite.

Contactez-nous dès aujourd’hui pour explorer nos options de locaux commerciaux à louer à Québec et laissez-nous vous guider vers l’espace idéal pour votre entreprise.

Property Features

  • Parking