Technopôle Angus 2522 square feet - For Rent
| Listing number | 9060 |
|---|---|
| ID | 15074982 |
| Price | $5,500.00/ month |
| Rooms | 0 |
| Type | Office Space For Rent |
| Category | A |
| Lot size | 0.00ft2 |
|---|---|
| Year Built | - |
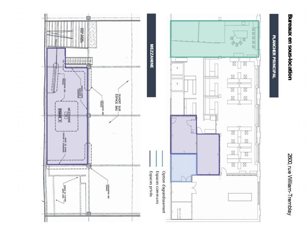
| Footage | 2,522.00ft2 |
| Floors / Stories | 2 |
| Parking | - |
| Is it a sublease? | Yes |
Description
Technopole Angus – An inspiring workspace for innovation
Establish your business in the heart of Technopole Angus, within a 2,522 sq. ft. shared office space located in the vibrant Shops Angus district, at the crossroads of Rosemont, Plateau-Mont-Royal, Centre-Sud and Hochelaga-Maisonneuve.
Located on the second floor of a private space, this modern and collaborative work environment offers access to a shared kitchen, conference rooms, as well as a fully equipped workshop with an on-site resource person available when needed. A 3D printer is also available for prototyping and specialized projects.
The LEED-certified building stands out for its sustainable design and prime location close to numerous shops and services. It features 24/7 security, a delivery area with freight elevator, eight electric vehicle charging stations ($), indoor bicycle racks, and a nearby BIXI station, making commuting easy and eco-friendly.
Janitorial services, as well as heating and electricity, are included.
A turnkey workspace ideally suited for creative, technological, or professional companies looking for an inspiring and efficient environment in Montréal.
Entretie
Property Features
- Air conditioning
- LEED Certified
- Cafeteria/kitchen
- Loading dock
- Renovated
- Boardrooms
- Alarm system
- Subway - Train transit






